Additional Information
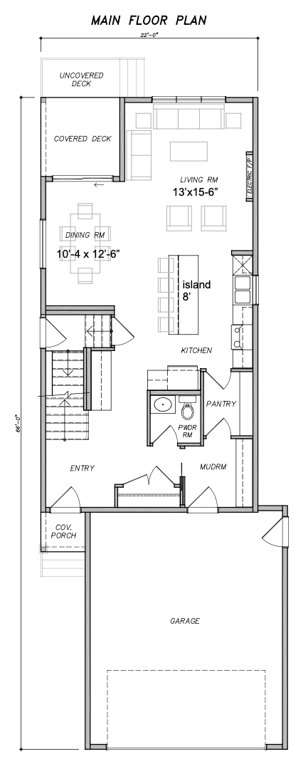
Step into a home where style meets functionality. This 2,011 sq. ft. two-story beauty features a main floor designed for modern living, with a sweeping open-concept layout that effortlessly connects the living, dining, and kitchen spaces. The large kitchen island becomes the heart of the home, perfect for entertaining or gathering the family, complemented by a walk-in pantry and a mudroom that keeps life organized without sacrificing style.
Upstairs, the master suite is a private sanctuary, complete with a luxurious walk-in closet and a spa-like ensuite bathroom. Two additional bedrooms, a spacious bonus room, and a convenient second-floor laundry provide comfort and flexibility for the whole family.
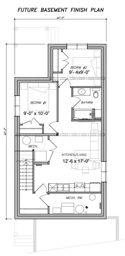
The basement offers an optional two-bedroom legal suite with a separate entry – a perfect opportunity for rental income or extended family living.
With a two-car garage and a prime location in the highly desirable Brighton community, this home is more than just a residence—it’s a lifestyle.
Key Features:
- 🌟 Open-Concept Main Floor – Seamlessly connects living, dining, and kitchen for effortless entertaining
- 🍽️ Large Kitchen Island – Ideal for meal prep, casual dining, and family gatherings
- 🥖 Walk-In Pantry – Extra storage for all your culinary essentials
- 🧥 Mudroom – Keeps everyday clutter organized in style
- 🛌 Master Suite Retreat – Walk-in closet and spa-like ensuite bathroom for ultimate relaxation
- 🎮 Spacious Bonus Room – Perfect for play, work, or lounging
- 🧺 Second-Floor Laundry – Adds convenience to daily routines
- 💼 Optional Two-Bedroom Legal Suite – Separate entry for rental income or extended family
- 🚗 Two-Car Garage – Ample parking and storage
- 📍 Prime Brighton Location – A desirable neighbourhood with style and convenience
